Description
Abri de Jardin ROVETO en Bois – Rangement Spacieux et Design Contemporain
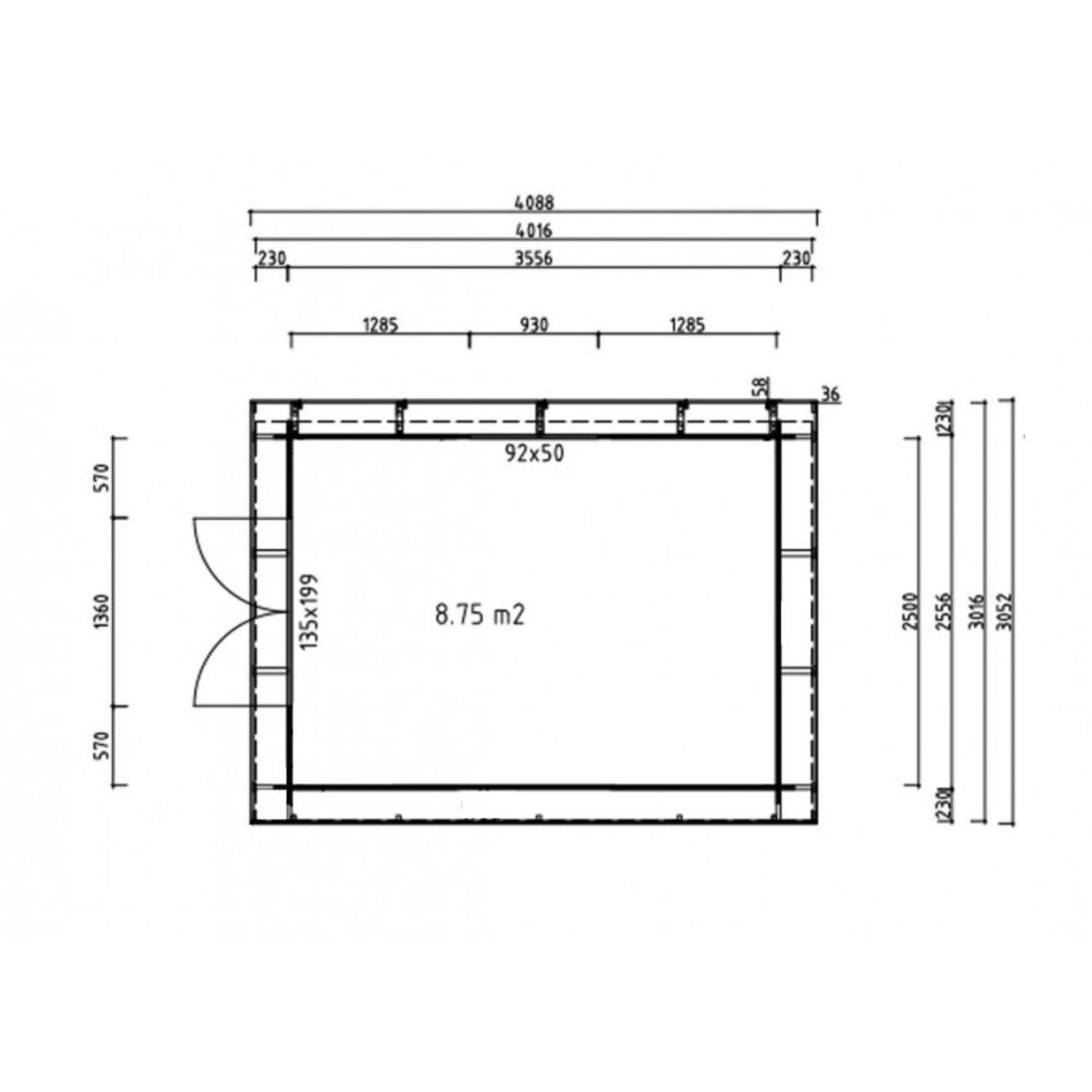
L’abri ROVETO en épicéa naturel associe esthétique moderne et praticité. Avec sa surface intérieure de 8,8 m² (2,50 x 3,50 m), il offre un espace généreux et polyvalent pour répondre à vos besoins de stockage, d’aménagement ou d’activités extérieures.
Un Abri Lumineux et Accessible
- Double porte (135 x 199 cm) facilitant le passage des objets volumineux
- Fenêtre fixe (50 x 92 cm) avec simple vitrage pour un apport de lumière naturelle
- Hauteur intérieure de 223 cm pour circuler confortablement
Solidité et Durabilité
- Madriers d’épicéa 28 mm garantissant robustesse et isolation
- Lames anti-tempête renforçant la stabilité de la structure
- Toit plat avec voliges et pente de 3° (5,2%) pour un écoulement efficace des eaux
- Avancée de toit de 23 cm pour une meilleure protection des façades
Un Abri Polyvalent
Grâce à ses dimensions généreuses, l’abri ROVETO s’adapte à de nombreux usages :
- Atelier de bricolage lumineux et pratique
- Garage sécurisé pour motos ou vélos
- Espace de rangement pour mobilier de jardin et outils
- Pool house convivial à proximité de votre piscine
Options Personnalisables
- Plancher en option pour un sol plat et confortable
- Revêtement de toit supplémentaire
- Possibilité de traitement ou lasure dans la couleur de votre choix
Dimensions Complètes
- Extérieures : 2,56 x 3,56 m (sans madriers) / 2,76 x 3,76 m (avec madriers)
- Hors-tout : 3,05 x 4,09 m
- Hauteur totale : 243 cm au faîtage
Livraison pratique en un seul colis – Temps de montage estimé : 1 journée
Garantie : 5 ans
Avec son look moderne et ses fonctionnalités multiples, l’abri ROVETO est la solution idéale pour structurer et embellir votre extérieur, en créant un espace à la fois pratique et agréable.
